Project information

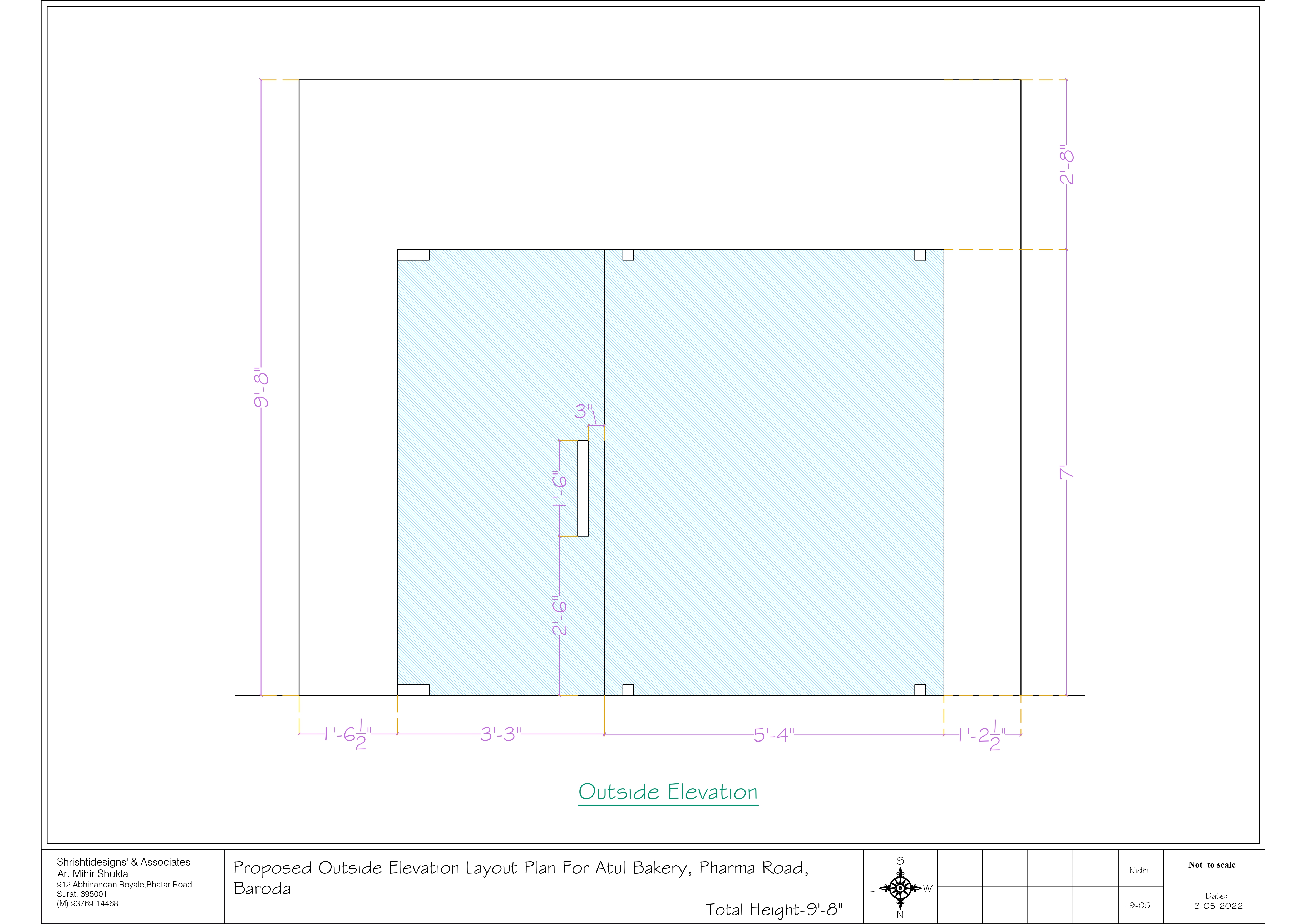
  • Category: Commercial
  • Client: Atul Bakery, Baroda
  • Project date: 2022