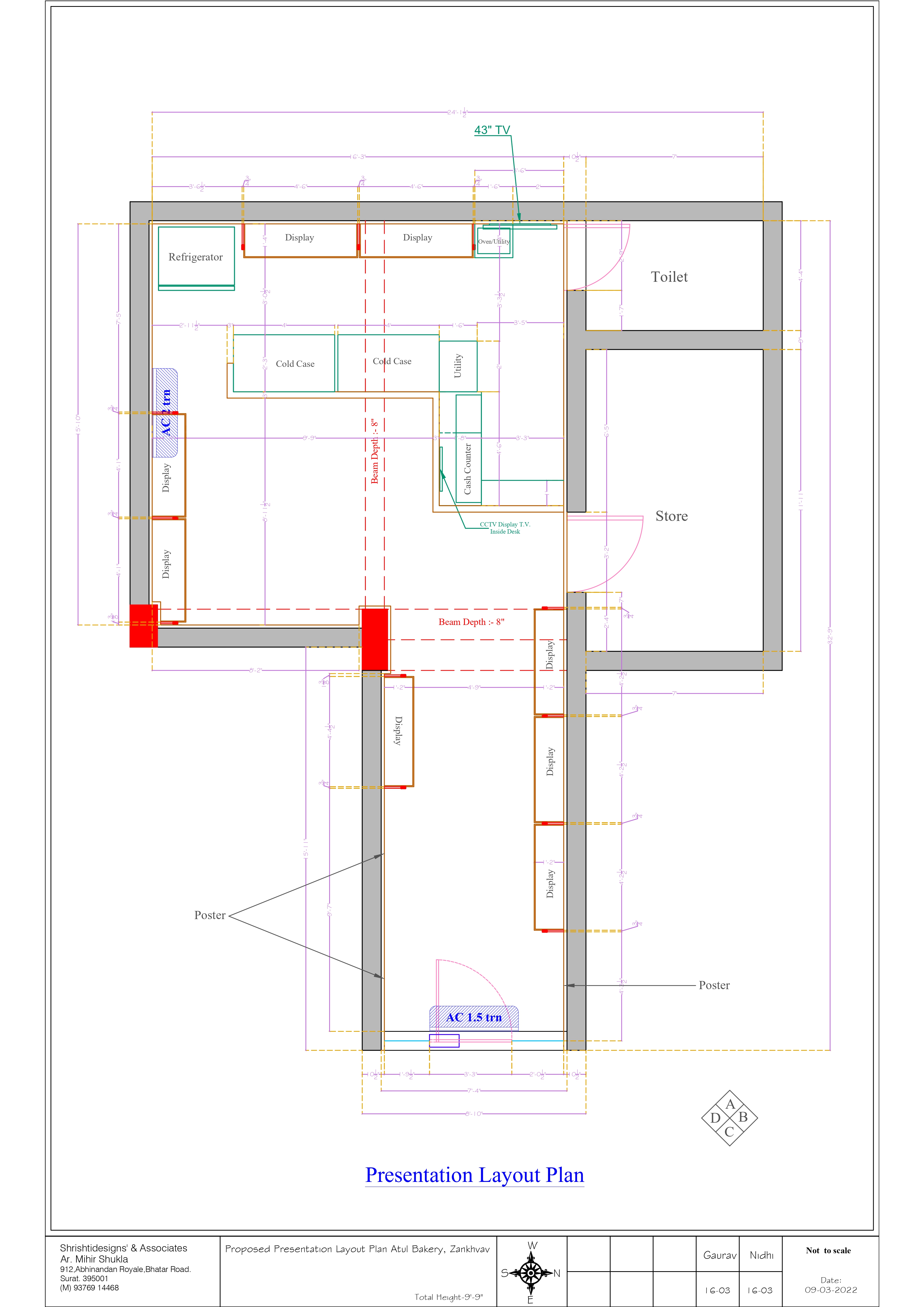
Project information

  • Category: Commercial
  • Client: Atul Bakery, Zankhvav
  • Project date: 2022