Project information

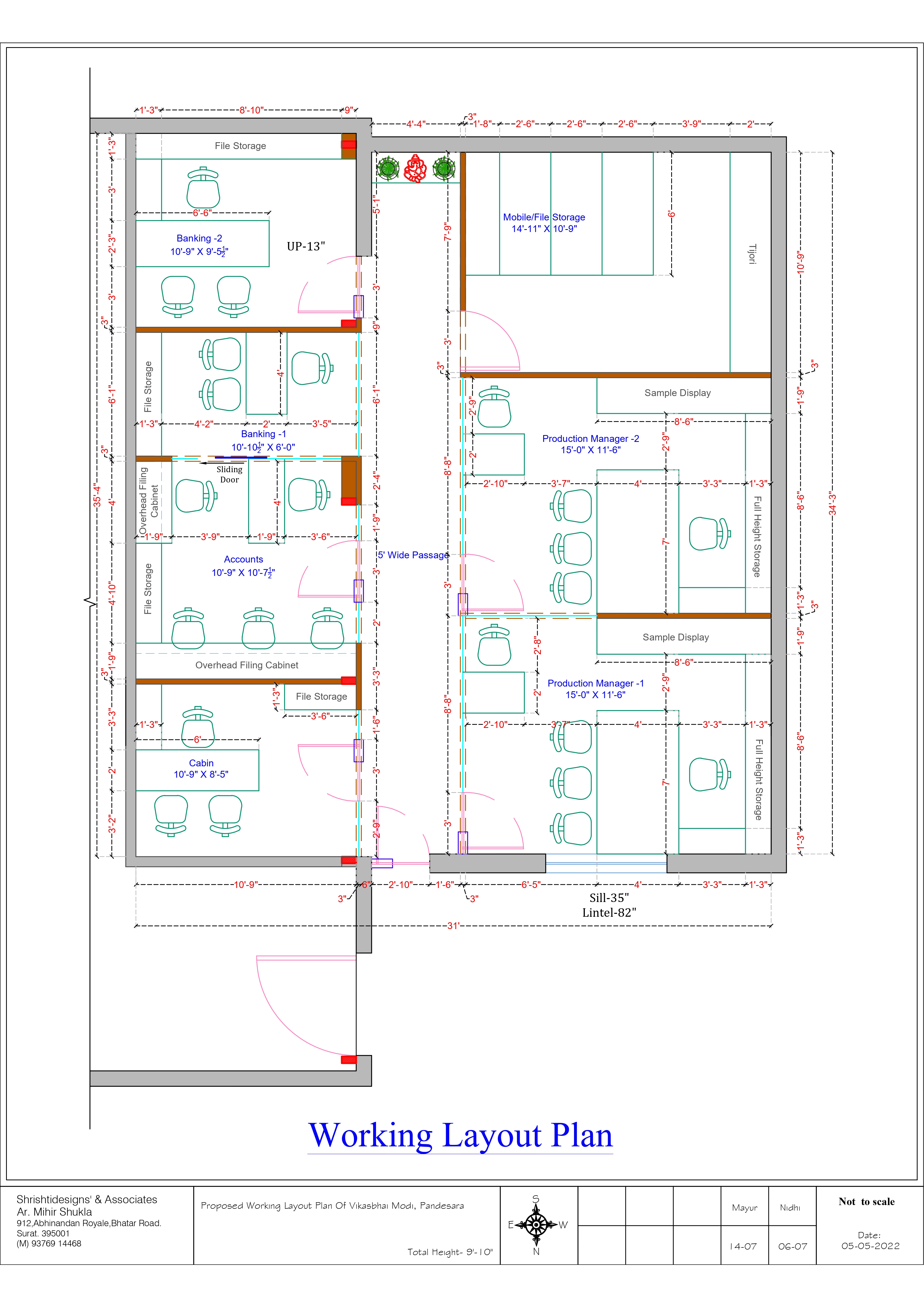
  • Category: Commercial
  • Client: Vikas Modi Office, Surat. Gujarat
  • Project date: 2022