Project information

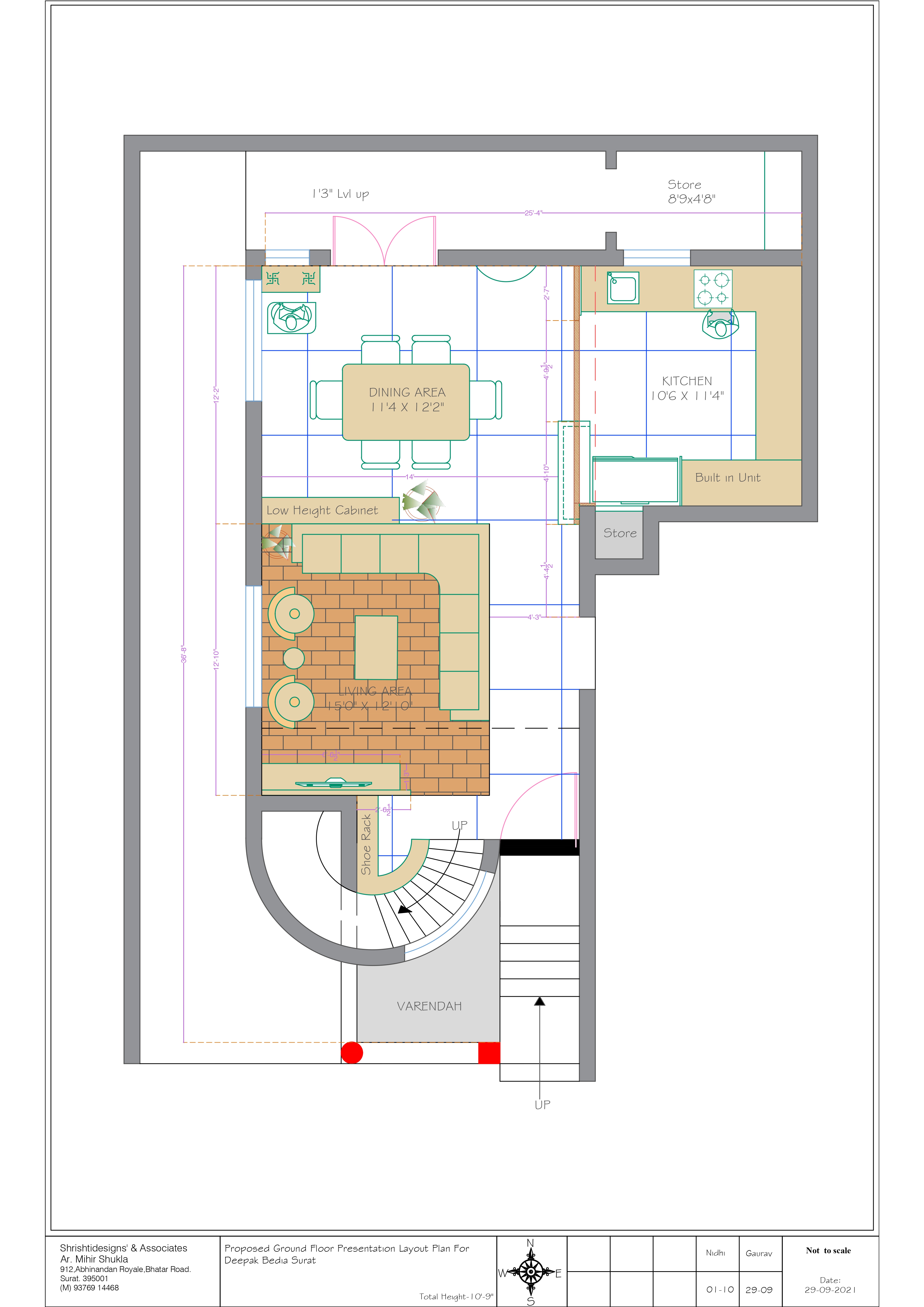
  • Category: Residential
  • Client: Dipak Bedia's Home, Surat
  • Project date: 2022